Villa Bifamiliare In Vendita, Pietrasanta - Riferimento: Wa 15579

Immobiliare Simonetti Logo

Agenzia Immobiliare SIMONETTI Marina di Pietrasanta

Immobiliare a Marina di Pietrasanta

Villa Bifamiliare in Vendita a Pietrasanta

Dettagli Principali

Riferimento: WA 15579
Numero Camere: 3
Numero Bagni: 3
Superficie Coperta: 155 mq
Parcheggio: PostoAuto
Giardino: Privato
Cucina: Abitabile
Classe Energetica: E, Ipe: 133.66 kWh/m2

Descrizione

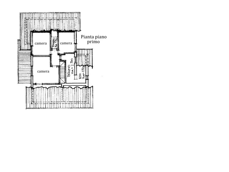
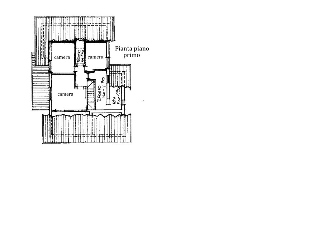
Villa bifamiliare su livelli

Pietrasanta - Nelle vicinanze del centro storico della città d'arte e di facile accesso alla Marina, villa in bifamiliare elevata su due livelli fuori terra per totali mq 155. L'unità, in ottime condizioni manutentive, corredata di cancello pedonale e cancello carrabile, è composta al piano terra da : piccolo porticato, ingresso-soggiorno-pranzo con scala in legno a vista, disimpegno,luminosa cucina abitabile con porticato adatto a momenti di relax, bagno con doccia, ripostiglio. Piano primo : due camere matrimoniali, 1 camera da una piazza e mezzo, un bagno con vasca, un servizio. Resede/giardino esclusivi su tre lati. Gazebo sul retro fronte porticato. Locale tecnico. Ripostiglio distaccato dalla unità. Posti auto. Aria condizionata.  

Altri Dettagli

Tipologia:
Villa Bifamiliare
Contratto:
Compravendita Residenziale
Località:
Pietrasanta
Zona:
Versilia
Condizioni:
Condizioni Ottime
Riscaldamento:
Autonomo
Aria Condizionata:
si
Numero di Vani:
8

Prezzo

€ 720.000

Richiedi informazioni su questo immobile

* Nome e Cognome:

* E-mail:

Telefono:

Oggetto:

Messaggio:
Controllo Antispam*: Qual è il numero tra 7 e 9?

Altri Immobili che potrebbero interessarti

Villa Bifamiliare in Vendita
>Foto Anteprima WA 15593 - Villa Bifamiliare in Vendita a Marina Di Pietrasanta

Marina di pietrasanta - su lotto di mq 378, elegante villino in bifamiliare costruzione anno 2020, elevato su due livelli fuori te. . .

Rif.: WA 15593
Prezzo: Tr. in Agenzia
[Dettagli]
Villa Bifamiliare in Vendita
>Foto Anteprima WA 15579 - Villa Bifamiliare in Vendita a Pietrasanta

Pietrasanta - nelle vicinanze del centro storico della città d'arte e di facile accesso alla marina, villa in bifamiliare elevata. . .

Rif.: WA 15579
Prezzo: 720.000 €
[Dettagli]
Villa Bifamiliare in Vendita
>Foto Anteprima WA 15557 - Villa Bifamiliare in Vendita a Marina Di Pietrasanta

Marina di pietrasanta: in località tonfano a 200 metri dal viale a mare, villetta in bifamiliare composta al piano ter. . .

Rif.: WA 15557
Prezzo: 890.000 €
[Dettagli]
Villa Bifamiliare in Vendita
>Foto Anteprima WA 15539 - Villa Bifamiliare in Vendita a Marina Di Pietrasanta

Marina di pietrasanta- in ottima collocazione residenziale tranquilla e riservata a circa 400 metri dal viale a mare, villetta in. . .

Rif.: WA 15539
Prezzo: Tr. in Agenzia
[Dettagli]